aid 03014 | Einfamilienhaus I.

aid 03014 | Einfamilienhaus I.

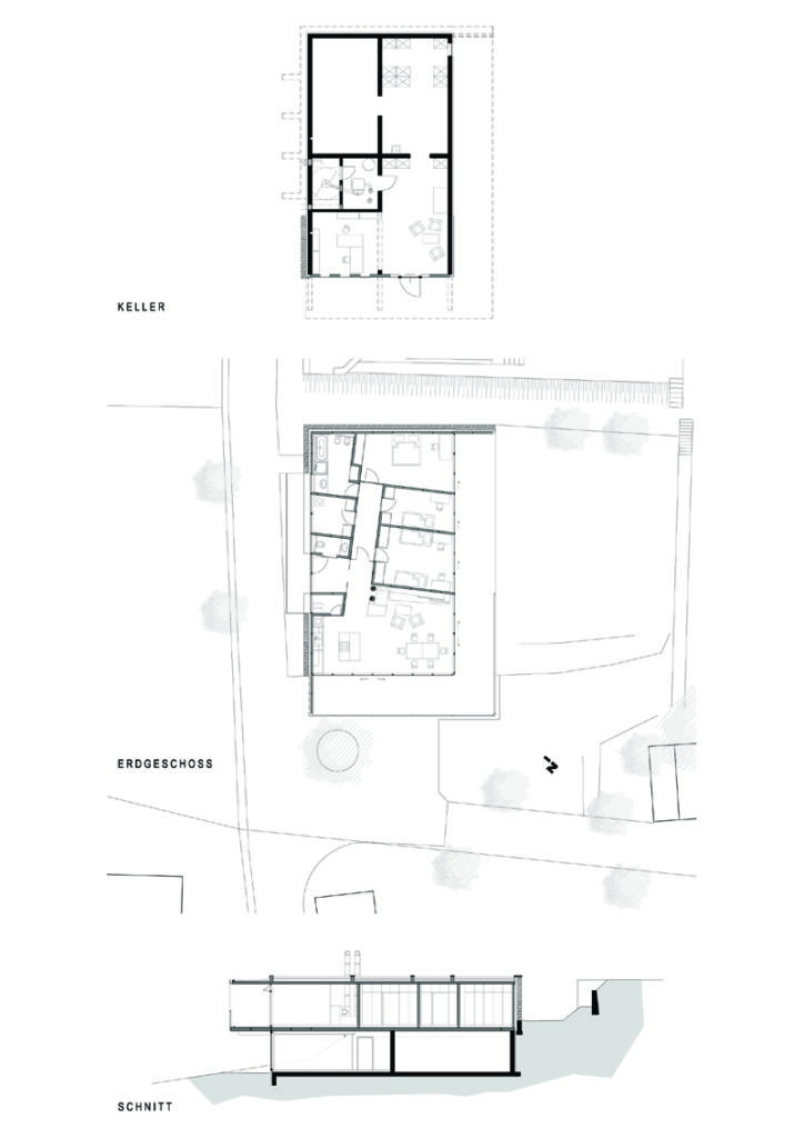
Dieses Einfamilienhaus am Gedersberg ist klar strukturiert, mit offenen, hellen Räumen und großzügigen Verglasungen zum Garten hin. Der flach gedeckte Baukörper schafft eine fließende Verbindung zwischen Innen- und Außenraum, während überdachte Terrassen den Wohnbereich nach außen erweitern und flexibel nutzbar machen.

Der schräg geschnittene Grundriss erlaubt eine optimierte Raumanordnung und unterstützt die funktionale Trennung zwischen öffentlichen und privaten Bereichen. Die Grundrissorganisation folgt dem Prinzip der Klarheit: Offen gestaltete Wohnzonen gehen nahtlos ineinander über, während private Räume bewusst zurückgenommen und abgeschirmt sind.

Im vorderen Teil des Hauses befinden sich der offen gestaltete Wohn-, Ess- und Kochbereich sowie ein Gäste-WC. Die gemeinschaftlich genutzten Bereiche sind klar nach außen orientiert und durch großzügige Verglasungen hell und transparent gestaltet. Der rückwärtige Teil des Hauses beherbergt ausschließlich private Funktionen: Schlafzimmer, Badezimmer und Nebenräume sind kompakt organisiert und bieten ein hohes Maß an Rückzugsmöglichkeit.

Durch das weit auskragende Vordach und Terrasse soll einerseits der empfundene Wohnraum ausgedehnt und ein überhitzen im Sommer verhindert werden. Bei tiefstehender Sonne in den Wintermonaten kann dennoch ein Energiegewinn erzielt werden.

Ein Keller im Untergeschoss dient als zusätzlicher Funktionsbereich und nimmt Lager- sowie Technikräume auf.

Ein Flachdach mit extensiver Begrünung schließt das Haus ab und ermöglicht den nördlichen und östlichen Nachbarn einen weiterhin ungetrübten Genuss der Landschaft.