WB | Feuerwache Ost
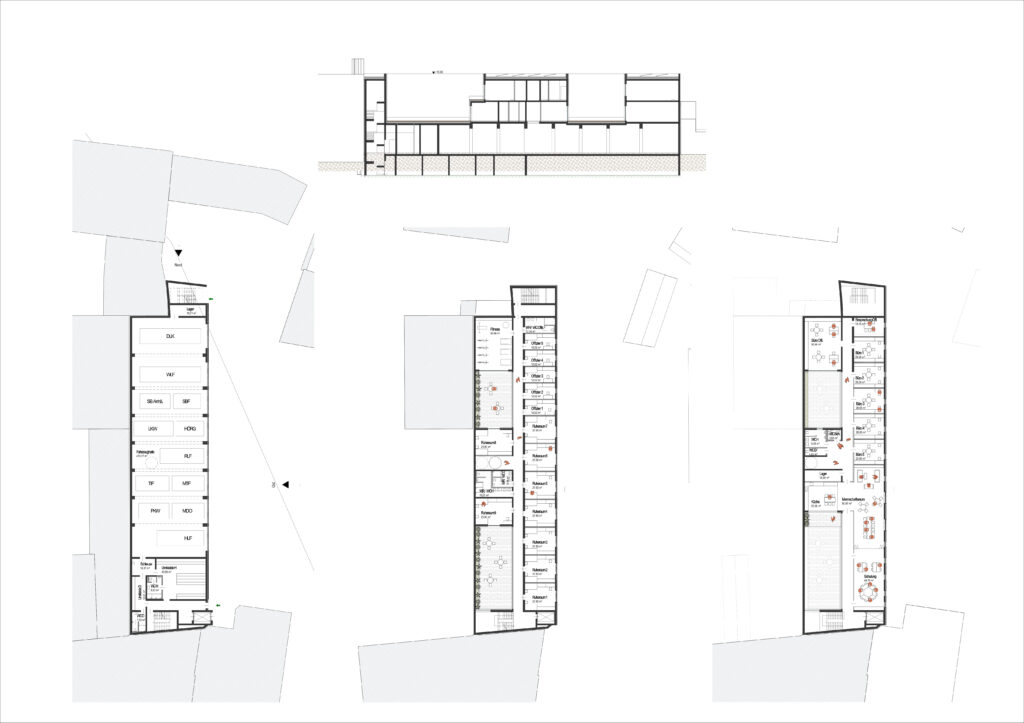
Der Entwurf für die Feuerwache Ost verbindet Funktionalität, Wirtschaftlichkeit und klare Architektur. Die Fahrzeughalle bestimmt den Grundriss des Erdgeschosses. Zwei Treppenhäuser und ein zentrales Gangsystem erschließen die angrenzenden Bereiche effizient.
Zwei begrünte Innenhöfe sorgen für Belichtung und bieten Aufenthaltsqualität. Die Obergeschosse verfügen über Freibereiche und Terrassen. Die Fassade gliedert sich klar: eine zweigeschossige Lochfassade über der Torfront, ergänzt durch perforierte Blechmasken und gefaltete Platten aus Naturstein oder Faserzement.
Das Tragwerk ist als Mischbauweise geplant: Massivbau im Erdgeschoss, Holzmassivbau in den Obergeschossen. Über der Fahrzeughalle liegt eine Holz-Beton-Verbunddecke auf Stahlbetonträgern. Begrünte Dächer und Photovoltaik ergänzen das nachhaltige Konzept.
Materialien: Stampfbeton, Naturstein, Cortenstahl, Faserzement, Holz
Konstruktion: Massivbau und Brettsperrholz