aid 08050 | Produktionshalle Edelstahltechnik Francesconi

aid 08050 | Produktionshalle Edelstahltechnik Francesconi

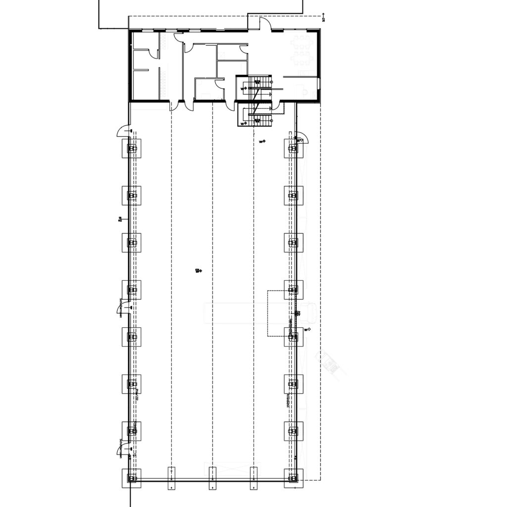
Die neue Produktionshalle für die Edelstahltechnik Francesconi wurde klar und funktional geplant. Der Baukörper ist einfach strukturiert und bietet stützenfreie Flächen für eine flexible Nutzung der Produktions- und Lagerbereiche.

Durch große, transluzente Fassadenelemente gelangt viel Tageslicht ins Innere – so entstehen gute Arbeitsbedingungen ohne zusätzliches Design.

Die Halle zeigt, wie mit einfachen Mitteln ein präziser und langlebiger Industriebau entstehen kann, der genau auf die Anforderungen des Betriebs abgestimmt ist.